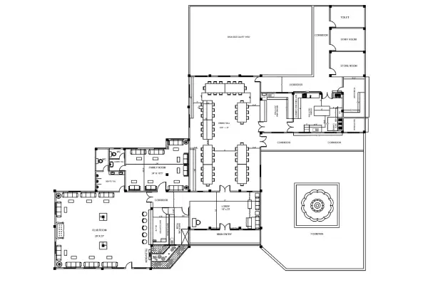
PRTC JCOS MESS INTERIORS
G Cube Studios designed the PRTC (Indian Army) JCOs Mess as a refined hospitality interior that blends military heritage with functional elegance. The space features durable wooden furniture, a neutral colour palette, and soft ambient lighting to create a formal yet welcoming dining environment. Long communal tables, a well-crafted bar counter, and thoughtfully planned circulation enhance usability and comfort for daily operations. Vertical wooden panelling, insignia displays, and curated memorabilia add character while reinforcing institutional identity. This project highlights G Cube Studios’ expertise in hospitality interiors, Army Mess interiors, and defence hospitality design, delivering spaces built for longevity, discipline, and high-performance use.
Location : JC Nagar , Bangalore

3D VISUALIZATION
PROJECT IMAGES

















